快速报价

免费家装顾问

全程跟踪服务,避免装修陷阱
* 免费电话申请: 0351-3933777
家装品质护航
选择肖邦家居就是选择了一份美好的生活承诺
30000㎡实景展厅
68大实景样板展示
全城市环保材料以环保卫为根基
严格按照德系工艺标准
层层把关严苛验收

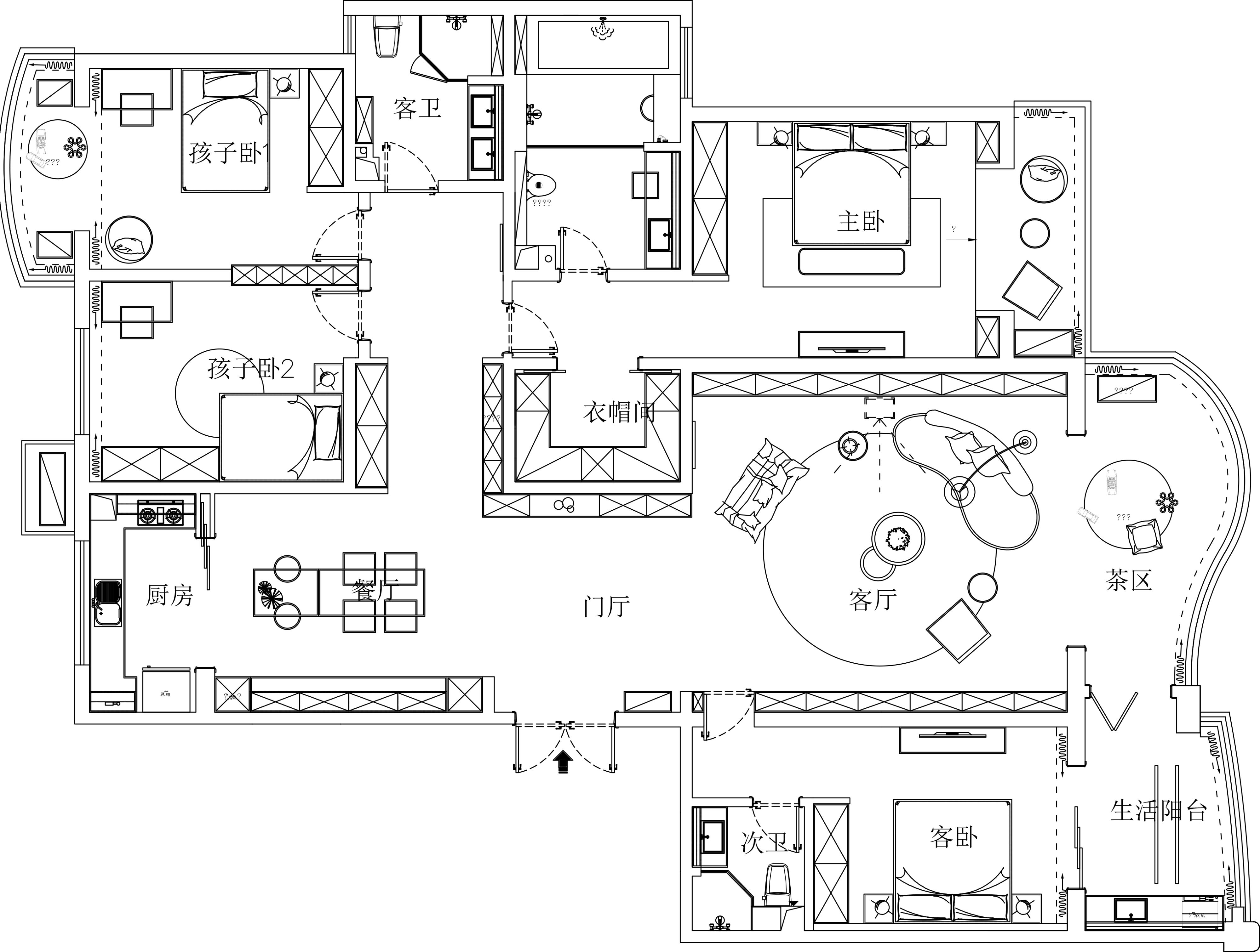
高丙洪:滨湖壹号 240㎡ 现代轻奢

浏览数:189次 更新时间: 2023-07-14
  • 现代轻奢

    案例风格

  •  
  • 平层

    案例户型

  •  
  • 161平米以上

    案例面积

  •  
  • 滨湖壹号

    楼盘名称

  •  
  • 太原

    所在城市

  •  
  • 高丙洪

    设计师

户型分析

上一篇:贾建伟:新城吾悦首府 235㎡ 新中式

下一篇:曹晓杰:瑞生丽园 183㎡ 现代简约

算一算 我家装修需要多少钱
算一算我家装修需要多少钱
免费报价电话
0351-3933777