快速报价

免费家装顾问

全程跟踪服务,避免装修陷阱
* 免费电话申请: 0351-3933777
家装品质护航
选择肖邦家居就是选择了一份美好的生活承诺
30000㎡实景展厅
68大实景样板展示
全城市环保材料以环保卫为根基
严格按照德系工艺标准
层层把关严苛验收

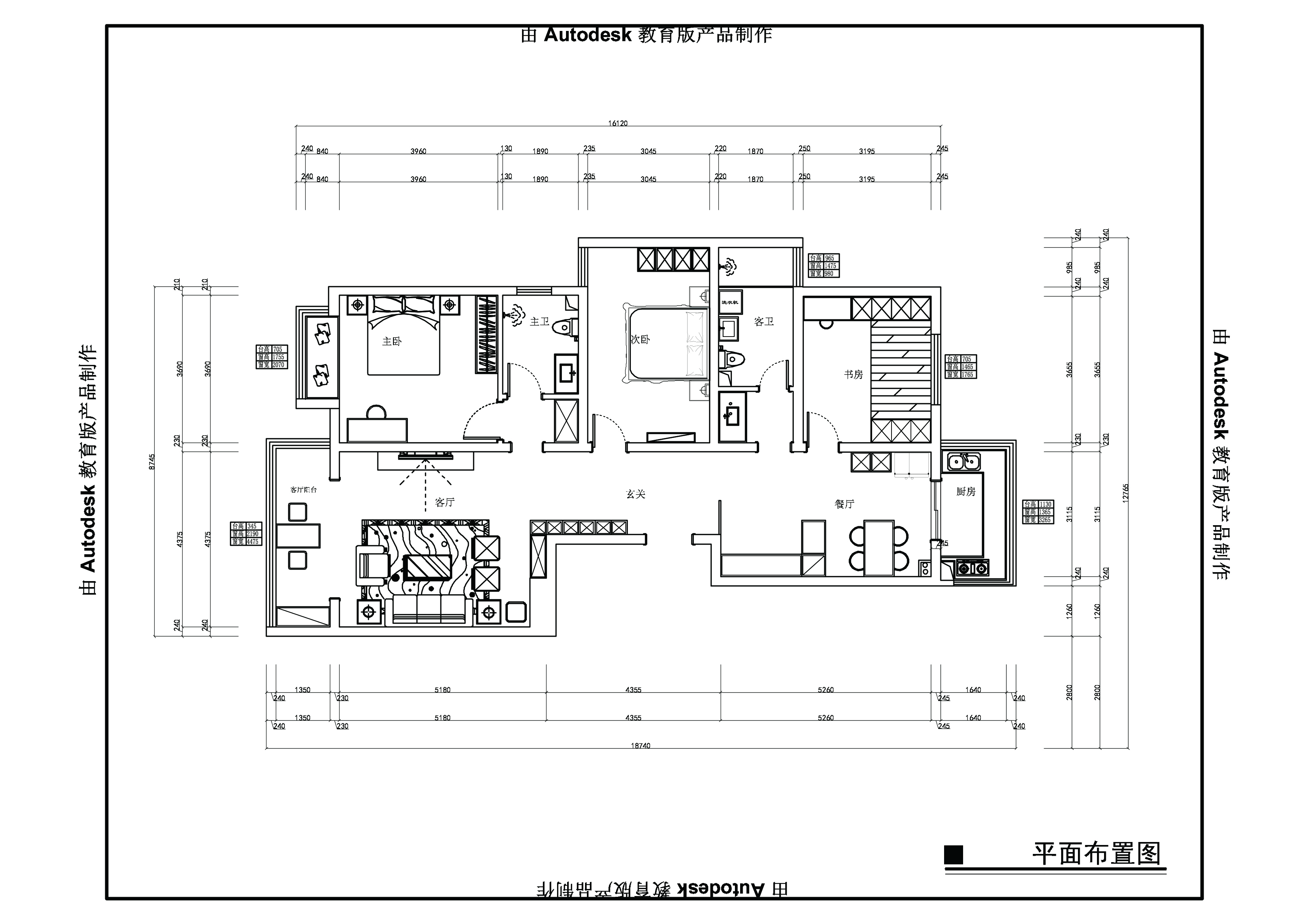
王泽民:介休棚户区改造 141㎡ 新中式

浏览数:166次 更新时间: 2023-07-22
  • 新中式

    案例风格

  •  
  • 三居室

    案例户型

  •  
  • 121-140平米

    案例面积

  •  
  • 介休棚户区改造

    楼盘名称

  •  
  • 介休

    所在城市

  •  
  • 王泽民

    设计师

户型分析

上一篇:王泽民:并东嘉苑 132㎡ 现代简约

下一篇:王泽民:介休御珑湾 219㎡ 美式乡村

算一算 我家装修需要多少钱
算一算我家装修需要多少钱
免费报价电话
0351-3933777